Bilocale in vendita

Lecce, Via dei Palumbo - Est
€ 150.000
2 locali 2 locali
52 Mq 52 Mq
1 bagno 1 bagno

Bilocale in vendita

Lecce, Via dei Palumbo - Est

Descrizione annuncio

L’ECCELLENZA SENZA COMPROMESSI
Nel cuore dei Salesiani nasce oggi un’idea, un connubio tra bellezza e funzionalità in architettura.

Il progetto prevede la realizzazione di un complesso residenziale composto da cinque piani fuori terra. Al piano terra saranno presenti box auto, al primo piano appartamenti, mentre ai piani secondo, terzo e quarto appartamento ognuno. Il piano copertura sarà destinato al vano tecnico fotovoltaico e all’impianto stesso.

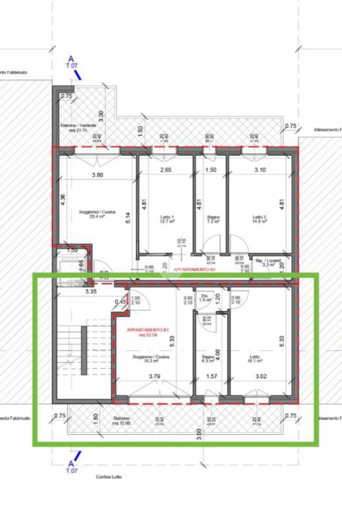
APPARTAMENTO B1 : TIPOLOGIA BILOCALE
composto da soggiorno-cucina, una camera da letto, un bagno con aerazione naturale, disimpegno e balcone antistante.

Costruttori, progettisti ed ingegneri a lavoro per creare ambienti confortevoli senza tralasciare alcun dettaglio e soprattutto non sottovalutando l’utilità degli spazi legati alla quotidianità di chi ci andrà ad abitare.

Prevista demolizione del fabbricato esistente e nuova costruzione di un fabbricato con utilizzo di PROTOCOLLO ITACA 2017 Delibera del Consiglio Comunale n. 93 del 06/05/2021, il tutto a condizione di realizzare un edificio rispondente al LIVELLO III di sostenibilità ambiente.

Il presente edificio può essere difinito ‘EDIFICIO AD ENERGIA QUASI ZERO’ in quanto verranno rispettati : tutti i requisiti previsti dal decreto legislativo 192/2005 secondo i valori vigenti e gli obblighi di integrazione delle fonti rinnovabili nel rispetto dei principi minimi del decreto legislativo 3 marzo 2011, .

Per ulteriori informazioni, contattaci al 393.9431466

Mostra tutto

Nelle vicinanze

Trasporto pubblico Trasporto pubblico
stazione di Lecce
stazione di Lecce
2,2 Km
Via San Domenico Savio
Via San Domenico Savio
110 m
Viale Leopardi
Viale Leopardi
180 m
Ricariche auto elettriche Ricariche auto elettriche
Eneldrive Parco dei Bambini
310 m
Hilton Garden Inn Lecce
310 m
Eneldrive Castello Carlo V
1,2 Km
Eneldrive S. Oronzo
1,3 Km
Eneldrive Parcheggio Autobus
1,3 Km
Scuole Scuole
Scuola Elementare San Domenico Savio
370 m
Scuole
500 m
Scuola Secondaria di Primo Grado "Quinto Ennio"
690 m
Università del Salento Parlangeli
810 m
Liceo Scientifico "Giulietta Banzi Bazoli"
830 m
Farmacia Farmacia
Farmacia Migali
160 m
Farmacia Chiga
340 m
Farmacia Moschettini
600 m
Farmacia Martina
620 m
Farmacia Petrelli
640 m
Supermercati Supermercati
Super A&O
140 m
Di Meglio
200 m
Super Day Alda
250 m
Dok
280 m
Pam Express
450 m
Negozi Negozi
OVS
240 m
Barocco
420 m
Magie del Forno
480 m
Red Carpet Store
630 m
Food Store
650 m
Bar Bar
Bar
140 m
Duo Emme Aperitif
920 m
Baldieri Dolce & Salato
960 m
Viveur
1,0 Km
Santa Cruz
1,1 Km
Ristoranti Ristoranti
Pizzeria Zio Giglio
170 m
L'Angolo della Pizza
250 m
Golden Pub
290 m
La Puccia
330 m
Checco Pizza
430 m
Mostra tutto

Caratteristiche

Rif.:
60800083
Piano:
1 di 4 con ascensore (Piano basso)
Balconi:
1
Camere da letto:
1
Arredamento:
Assente
Condizionamento:
Autonomo
Mostra tutto
Prezzo Prezzo
€ 150.000
Rata mutuo Rata mutuo
€ 708 / mese
Proponi il tuo prezzoProponi il tuo prezzo

Classe Energetica

A4
A4
A4
A4
A4
A4
A4
A4
A4
Anno di costruzione:
2025
Riscaldamento:
Autonomo
Tipo impianto:
Ad aria
Tipo alimentazione:
Pannelli

Ti interessa visionare l'immobile?

Fissa un appuntamento  Fissa un appuntamento

Richiedi informazioni

Clicca su Leggi per aprire l'informativa
* Questi campi sono obbligatori

Calcola il tuo mutuo

Semplice e senza impegno
Anticipo

( % )
Mutuo

( % )

pochi semplici passi

inserisci i tuoi dati
Questionario completato
Grazie per aver richiesto un appuntamento senza impegno con un nostro Consulente del Credito e Assicurativo.

Hai inserito correttamente tutti i dati necessari e a breve riceverai una e-mail con un link da convalidare per inviare i tuoi dati.
Affiliato
Studio Leuca Sas
Via Gobetti 56 angolo p.zza Ariosto, 73100 Lecce (LE)

Il nostro staff


  • Vincenzo Lillo
    Affiliato

  • Florinda Chieppa
    Affiliata

  • Dalila Rita Miglietta
    Coordinatrice

  • Lorenzo Russo
    Collaboratore

  • Davide Esposito
    Collaboratore
Via Gobetti 56 angolo p.zza Ariosto, 73100 Lecce (LE)
Zona: Lecce-Zona Semi Centro-Salesiani
Mostra su mappa
Orari: lunedì: 08:30-20:30 martedì-venerdì: 8:30-13.00 /16:00-20:30 sabato: 8:30-13:00
Affiliato
Studio Leuca Sas
Via Gobetti 56 angolo p.zza Ariosto, 73100 Lecce (LE)

2025 Tecnocasa Franchising S.p.A. - P. IVA 08365160152 - Via Monte Bianco 60/A 20089 Rozzano (MI). Ogni agenzia ha un proprio titolare ed è autonoma. Privacy policy | Policy utilizzo | Cookie policy